Trilocale in vendita

Albignasego, Via san tommaso - San Tommaso
€ 185.000
3 locali 3 locali
73 Mq 73 Mq
2 bagni 2 bagni

Trilocale in vendita

Albignasego, Via san tommaso - San Tommaso

Descrizione annuncio

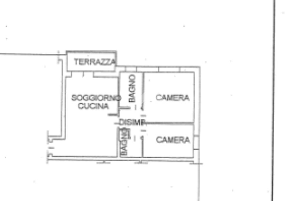
Nel cuore della località di San Tommaso, ad Albignasego, si propone un appartamento trilocale di 73 mq, situato al piano medio di un edificio costruito nel 2004. L'immobile offre un comodo salotto con cucina, che si apre su un ampio terrazzo, ideale per momenti di relax all'aperto. La zona giorno è ben organizzata, mentre la zona notte comprende due camere da letto, perfette per una famiglia o per chi desidera uno spazio aggiuntivo per ospiti o studio. Sono presenti due bagni, che garantiscono praticità e comfort. Completa la proprietà un garage, che offre una soluzione sicura e comoda per il parcheggio. L'appartamento si trova in una zona residenziale tranquilla, che assicura serenità e privacy, pur essendo ben collegata ai principali servizi e vie di comunicazione. Una soluzione abitativa che coniuga funzionalità e comfort in un contesto piacevole e riservato.

Mostra tutto

Nelle vicinanze

Trasporto pubblico Trasporto pubblico
Capolinea Sud
Capolinea Sud
2,1 Km
Guizza
Guizza
2,6 Km
Albignasego / Belluno
Albignasego / Belluno
740 m
Albignasego / Hotel Colonna
Albignasego / Hotel Colonna
760 m
Ricariche auto elettriche Ricariche auto elettriche
ING. ALBERTO RIGONI
1,0 Km
APS Obrizzi
1,1 Km
Scuole Scuole
Scuola Primaria Leonardo da Vinci
410 m
Istituto Comprensivo di Albignasego, Scuola Secondaria 1° grado Manara Valgimigli
460 m
Scuola Primaria G. Rodari
920 m
scuola Primaria Giovanni Bonetto
1,1 Km
Scuola Primaria Raggio di Sole
1,9 Km
Farmacia Farmacia
Farmacia Montagna
820 m
Farmacia ai Ferri
920 m
Farmacia
2,5 Km
Farmacia Perin Franco
2,8 Km
Supermercati Supermercati
LAZZARINI
1,1 Km
Ipercity
2,9 Km
A&O
2,9 Km
Eurospar
3,0 Km
Negozi Negozi
Antico Forno Cappellato
760 m
La botique del pane e del dolce
1,0 Km
Panificio Caffe' Androni
2,6 Km
Minimarket I Colori del Grano
2,6 Km
Cartoleria Tabaccheria Gallo Elisabetta
2,8 Km
Bar Bar
Movembik
840 m
2L snack bar
2,5 Km
Bar Mimosa
2,6 Km
Bar
2,6 Km
Bar Caffè Mirò
2,8 Km
Ristoranti Ristoranti
Ristoranti
350 m
Ristorante Pizzeria Fuori Orario
1,3 Km
Locanda Red Pepper
1,8 Km
Milan Stardust
1,9 Km
Pizzeria
2,0 Km
Mostra tutto

Caratteristiche

Rif.:
61178349
Piano:
1 di 2 (Piano medio)
Box:
1
Terrazzi:
1
Camere da letto:
2
Arredamento:
Parziale
Mostra tutto
Prezzo Prezzo
€ 185.000
Rata mutuo Rata mutuo
€ 878 / mese
Spese annue Spese annue
€ 450
Proponi il tuo prezzoProponi il tuo prezzo

Classe Energetica

E
E
E
E
E
E
E
E
E
EP invernale del fabbricato:
EP estiva del fabbricato:
Anno di costruzione:
2004
Riscaldamento:
Autonomo
Tipo impianto:
A radiatori
Tipo alimentazione:
Metano

Ti interessa visionare l'immobile?

Fissa un appuntamento  Fissa un appuntamento

Richiedi informazioni

Clicca su Leggi per aprire l'informativa
* Questi campi sono obbligatori

Calcola il tuo mutuo

Semplice e senza impegno
Anticipo

( % )
Mutuo

( % )

pochi semplici passi

inserisci i tuoi dati
Questionario completato
Grazie per aver richiesto un appuntamento senza impegno con un nostro Consulente del Credito e Assicurativo.

Hai inserito correttamente tutti i dati necessari e a breve riceverai una e-mail con un link da convalidare per inviare i tuoi dati.
Affiliato
Kira Albi Sas
Via Roma, 117 35020 Albignasego (PD)

Il nostro staff


  • Andrea Massaro
    Affiliato

  • Manuel Berti
    Collaboratore

  • Francesco Nappo
    Collaboratore

  • Christian Rigato
    Collaboratore
Via Roma, 117 35020 Albignasego (PD)
Zona: Albignasego - S. Agostino - S. Giacomo
Mostra su mappa
Orari: Da lunedì a venerdì: 9:00 - 12:30/15:00 - 19:30, il Sabato dalle 9.00 - 13:00
Affiliato
Kira Albi Sas
Via Roma, 117 35020 Albignasego (PD)

2026 Tecnocasa Franchising S.p.A. - P. IVA 08365160152 - Via Monte Bianco 60/A 20089 Rozzano (MI). Ogni agenzia ha un proprio titolare ed è autonoma. Privacy policy | Policy utilizzo | Cookie policy