Casa indipendente in vendita

Albignasego, Via Torino - San Lorenzo
€ 252.000
4 locali 4 locali
148 Mq 148 Mq
2 bagni 2 bagni

Casa indipendente in vendita

Albignasego, Via Torino - San Lorenzo

Descrizione annuncio

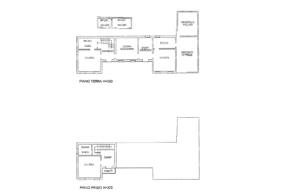
Proponiamo in vendita una casa singola su due piani con ampio cortile esterno.

L’abitazione è sviluppata su due livelli: al piano terra troviamo soggiorno con cucina separata. Dalla cucina passiamo ad un disimpegno che porta alla prima camera da letto e al primo bagno. Salendo le scale abbiamo il secondo bagno, lo studio e la seconda camera da letto. Esternamente gode di un ampio cortile che si sviluppa anche dietro la casa con un piccolo deposito. Fuori dall’abitazione c’è un ampio spazio anche per diversi posti auto.

Il tutto si trova in una zona tranquilla del Comune, a pochi passi dal centro del paese e comoda ai servizi.

Mostra tutto

Nelle vicinanze

Trasporto pubblico Trasporto pubblico
Capolinea Sud
Capolinea Sud
2,1 Km
Guizza
Guizza
2,8 Km
Albignasego / Belluno
Albignasego / Belluno
840 m
Albignasego / Hotel Colonna
Albignasego / Hotel Colonna
850 m
Ricariche auto elettriche Ricariche auto elettriche
APS Obrizzi
1,1 Km
ING. ALBERTO RIGONI
1,1 Km
Scuole Scuole
scuola Primaria Giovanni Bonetto
740 m
Scuola Primaria Leonardo da Vinci
1,2 Km
Istituto Comprensivo di Albignasego, Scuola Secondaria 1° grado Manara Valgimigli
1,2 Km
Scuola Primaria G. Rodari
1,5 Km
Scuole
1,5 Km
Farmacia Farmacia
Farmacia Montagna
920 m
Farmacia ai Ferri
1,0 Km
Farmacia Perin Franco
1,6 Km
Supermercati Supermercati
LAZZARINI
1,7 Km
Negozi Negozi
Antico Forno Cappellato
830 m
La botique del pane e del dolce
1,2 Km
Panificio-Alimentari Michelotto
1,6 Km
Minimarket I Colori del Grano
1,7 Km
Cartoleria Tabaccheria Gallo Elisabetta
2,9 Km
Bar Bar
Movembik
970 m
Bar Caffè Mirò
1,5 Km
Zanzibar
3,0 Km
Ristoranti Ristoranti
Ristorante Pizzeria Fuori Orario
1,1 Km
Prosciutteria Villa Salom
1,1 Km
Ristoranti
1,3 Km
Trattoria Pizzeria La Locanda
1,5 Km
Ristorante Madre Terra
1,6 Km
Mostra tutto

Caratteristiche

Rif.:
61011746
Piano:
Terra con giardino di 2
Totale piani:
2
Box:
1
Posti auto:
2
Balconi:
1
Mostra tutto
Prezzo Prezzo
€ 252.000
Rata mutuo Rata mutuo
€ 1.187 / mese
Spese annue Spese annue
€ 0
Proponi il tuo prezzoProponi il tuo prezzo

Classe Energetica

G
G
G
G
G
G
G
G
G
EP globale non rinnovabile:
203.00 kW h/m² anno
EP globale rinnovabile:
85.60 kW h/m² anno
EP invernale del fabbricato:
EP estiva del fabbricato:
Anno di costruzione:
1970
Riscaldamento:
Autonomo
Tipo impianto:
A radiatori
Tipo alimentazione:
Metano

Ti interessa visionare l'immobile?

Fissa un appuntamento  Fissa un appuntamento

Richiedi informazioni

Clicca su Leggi per aprire l'informativa
* Questi campi sono obbligatori

Calcola il tuo mutuo

Semplice e senza impegno
Anticipo

( % )
Mutuo

( % )

pochi semplici passi

inserisci i tuoi dati
Questionario completato
Grazie per aver richiesto un appuntamento senza impegno con un nostro Consulente del Credito e Assicurativo.

Hai inserito correttamente tutti i dati necessari e a breve riceverai una e-mail con un link da convalidare per inviare i tuoi dati.
Affiliato
Kira Albi Sas
Via Roma, 117 35020 Albignasego (PD)

Il nostro staff


  • Andrea Massaro
    Affiliato

  • Manuel Berti
    Collaboratore

  • Francesco Nappo
    Collaboratore

  • Christian Rigato
    Collaboratore
Via Roma, 117 35020 Albignasego (PD)
Zona: Albignasego - S. Agostino - S. Giacomo
Mostra su mappa
Orari: Da lunedì a venerdì: 9:00 - 12:30/15:00 - 19:30, il Sabato dalle 9.00 - 13:00
Affiliato
Kira Albi Sas
Via Roma, 117 35020 Albignasego (PD)

2026 Tecnocasa Franchising S.p.A. - P. IVA 08365160152 - Via Monte Bianco 60/A 20089 Rozzano (MI). Ogni agenzia ha un proprio titolare ed è autonoma. Privacy policy | Policy utilizzo | Cookie policy