Villa singola in vendita

Albignasego, Vicolo Treviso - San Lorenzo
€ 270.000
4 locali 4 locali
177 Mq 177 Mq
2 bagni 2 bagni

Villa singola in vendita

Albignasego, Vicolo Treviso - San Lorenzo

Descrizione annuncio

Proponiamo in vendita una casa singola su più piani con ampie metrature interne, garage esterno e cortile privato.

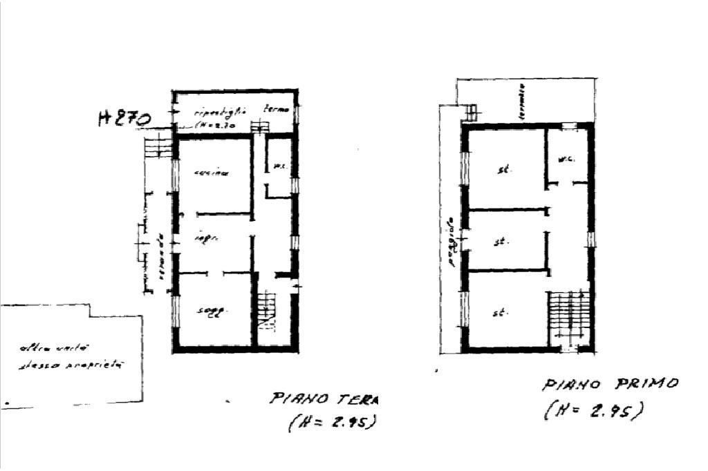
L'abitazione si compone su due livelli, al piano terra troviamo un'ampia cucina, un soggiorno, un bagno e un disimpegno che dà accesso ad una cantina. Salendo le scale abbiamo tre camere da letto, un bagno e un poggiolo che dà accesso ad una terrazza abitabile.
Esternamente offre un ampio garage e un giardino privato che può ospitare un paio di auto.

Il tutto si trova in una zona centralissima al Comune comoda ai servizi e al contempo tranquilla.

Mostra tutto

Nelle vicinanze

Trasporto pubblico Trasporto pubblico
Capolinea Sud
Capolinea Sud
1,5 Km
Guizza
Guizza
2,2 Km
Albignasego / Foscolo
Albignasego / Foscolo
160 m
Albignasego / Belluno
Albignasego / Belluno
360 m
Ricariche auto elettriche Ricariche auto elettriche
APS Obrizzi
1,2 Km
ING. ALBERTO RIGONI
1,2 Km
Scuole Scuole
Scuola Primaria G. Rodari
630 m
Scuola Primaria Leonardo da Vinci
790 m
scuola Primaria Giovanni Bonetto
890 m
Istituto Comprensivo di Albignasego, Scuola Secondaria 1° grado Manara Valgimigli
910 m
Scuole
1,7 Km
Farmacia Farmacia
Farmacia ai Ferri
220 m
Farmacia Montagna
860 m
Farmacia Perin Franco
1,8 Km
Farmacia Dr. Zilli
2,7 Km
Farmacia
3,0 Km
Supermercati Supermercati
LAZZARINI
1,7 Km
Eurospar
2,6 Km
Alì Via Modigliani
2,7 Km
Ipercity
2,9 Km
Negozi Negozi
Antico Forno Cappellato
330 m
La botique del pane e del dolce
360 m
Minimarket I Colori del Grano
1,7 Km
Panificio-Alimentari Michelotto
1,8 Km
Cartoleria Tabaccheria Gallo Elisabetta
2,3 Km
Bar Bar
Movembik
930 m
Bar Caffè Mirò
1,8 Km
Bar
2,6 Km
2L snack bar
2,7 Km
Ristoranti Ristoranti
Ristorante Pizzeria Fuori Orario
440 m
Ristoranti
940 m
Trattoria Pizzeria La Locanda
1,7 Km
Pizzeria da Renato
1,9 Km
Prosciutteria Villa Salom
1,9 Km
Mostra tutto

Caratteristiche

Rif.:
61004509
Piano:
Su più livelli di 2
Totale piani:
2
Box:
1
Posti auto:
2
Balconi:
1
Mostra tutto
Prezzo Prezzo
€ 270.000
Rata mutuo Rata mutuo
€ 1.272 / mese
Spese annue Spese annue
€ 0
Proponi il tuo prezzoProponi il tuo prezzo

Classe Energetica

G
G
G
G
G
G
G
G
G
EP globale non rinnovabile:
203.00 kW h/m² anno
EP globale rinnovabile:
85.60 kW h/m² anno
EP invernale del fabbricato:
EP estiva del fabbricato:
Anno di costruzione:
1970
Riscaldamento:
Autonomo
Tipo impianto:
A radiatori
Tipo alimentazione:
Metano

Ti interessa visionare l'immobile?

Fissa un appuntamento  Fissa un appuntamento

Richiedi informazioni

Clicca su Leggi per aprire l'informativa
* Questi campi sono obbligatori

Calcola il tuo mutuo

Semplice e senza impegno
Anticipo

( % )
Mutuo

( % )

pochi semplici passi

inserisci i tuoi dati
Questionario completato
Grazie per aver richiesto un appuntamento senza impegno con un nostro Consulente del Credito e Assicurativo.

Hai inserito correttamente tutti i dati necessari e a breve riceverai una e-mail con un link da convalidare per inviare i tuoi dati.
Affiliato
Kira Albi Sas
Via Roma, 117 35020 Albignasego (PD)

Il nostro staff


  • Andrea Massaro
    Affiliato

  • Manuel Berti
    Collaboratore

  • Francesco Nappo
    Collaboratore

  • Christian Rigato
    Collaboratore
Via Roma, 117 35020 Albignasego (PD)
Zona: Albignasego - S. Agostino - S. Giacomo
Mostra su mappa
Orari: Da lunedì a venerdì: 9:00 - 12:30/15:00 - 19:30, il Sabato dalle 9.00 - 13:00
Affiliato
Kira Albi Sas
Via Roma, 117 35020 Albignasego (PD)

2026 Tecnocasa Franchising S.p.A. - P. IVA 08365160152 - Via Monte Bianco 60/A 20089 Rozzano (MI). Ogni agenzia ha un proprio titolare ed è autonoma. Privacy policy | Policy utilizzo | Cookie policy